OŚRODEK OPIEKUŃCZO-MIESZKANIOWY W SOBOWIE

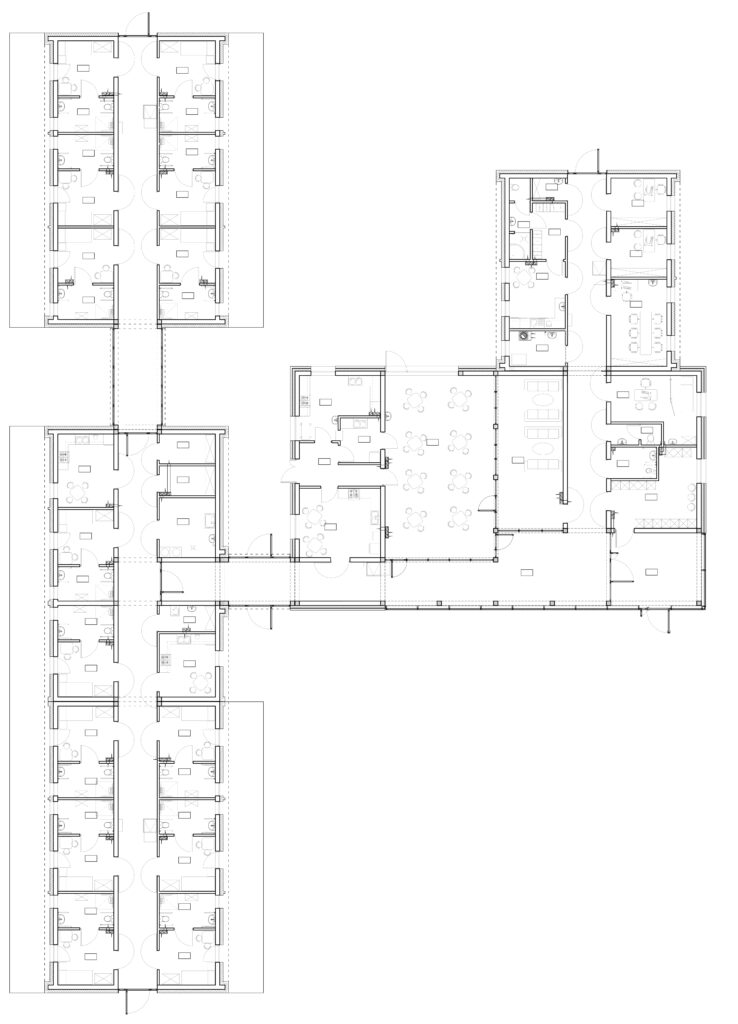
Projektowany budynek przeznaczony jest na Ośrodek Opiekuńczo-Mieszkalny. Celem inwestycji jest stworzenie systemu wsparcia dla osób z niepełnosprawnościami. Istotnym założeniem było zapewnienie możliwości pobytu dziennego lub całodobowego.
Obiekt stanowi wolnostojący, jednokondygnacyjny budynek o konstrukcji murowanej, z dachem o nachyleniu 6° i 11°, pokrytym blachą na rąbek.

PROJEKT FUNKCJONALNY

Budynek składa się z dwóch części:
Pobyt dzienny – pomieszczeń zapewniających możliwość świadczenia tygodniowych usług dla osób starszych i chorych. W tej części znajdują się pokoje wypoczynkowe, jadalnia, kuchnia, szatnia, toalety oraz inne pomieszczenia niezbędne do funkcjonowania Ośrodka.
Pobyt całodobowy – pomieszczeń mieszkalnych z łazienkami.
Dostępność dla osób z niepełnosprawnościami została zapewniona w poszczególnych pomieszczeniach, zgodnie z wymaganiami przepisów dotyczących budynków użyteczności publicznej.

model

GROUND FLOOR PLAN